新築戸建
横浜市南区永田東2丁目新築
おかげさまで成約致しました。
高台の閑静な住宅街 二面道路につき解放感があります
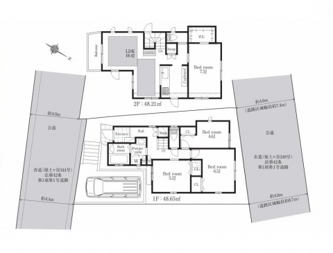
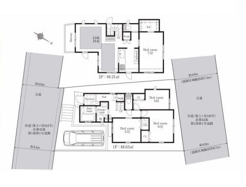
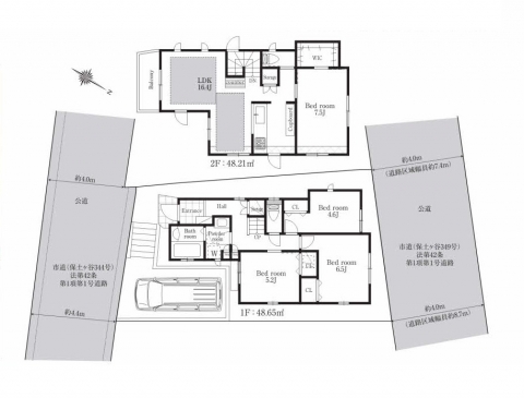
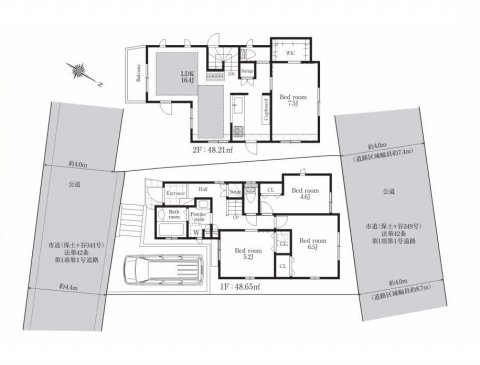
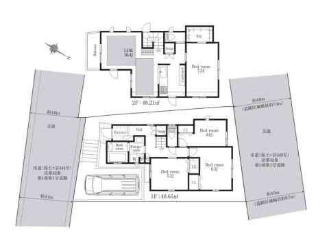
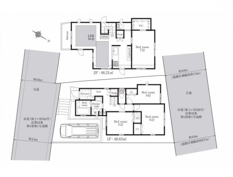
- 間取り
- 4LDK
- アクセス
- 京浜急行『井土ヶ谷』駅 徒歩16分




- ※小さな画像をクリックすると、大きな画像が切り替わります
| 所在地 | 横浜市南区永田東2-30-22 |
|---|---|
| アクセス | 京浜急行『井土ヶ谷』駅 徒歩16分 |
| 駐車場 | 1台 |
| 完工 | 令和7年8月予定 |
| 構造 | 木造スレート葺き2階建て |
| 土地面積 | 100.14㎡ ※公簿面積 |
| 建物面積 | 96.86㎡ |
| 建ぺい率 | 50% |
| 容積率 | 100% |
| 土地権利 | 所有権 |
| 地目 | 宅地 |
| 接道状況 | 南西側約4.4m公道 北西側約4.0m公道 |
| 都市計画 | 市街化区域 |
| 用途地域 | 第一種低層住居専用地域 |
| 他の法令上の制限 | 準防火地域・第1種高度地区他 |
| 建築確認番号 | 建物:第AI建築確認00-2400689号 |
| 設備 | 公営水道、公共下水道、都市ガス、東京電力 |
| 取引形態 | 売主 |














